Самодельный теплый пол

Обсуждение и отзывы накидных тентов, искрозащитных накидок (ИЗН), укрытий для пола и других дополнительных опций
Аватара пользователя
Николай Николаевич
Капитан Мобиба Гвардии
Капитан Мобиба Гвардии
Сообщения: 928
Зарегистрирован: 07 июн 2016, 10:05
Для знакомых: Николай
Мобиба у меня с: 13 мая 2016 г.
Мой комплект: «Кайфандра-5» РБ-200/К5; Мб-10А; Мб-104; Согра; Паробомба; КЦ-2 "Гравицапа"; ПС-700; МГ-1 "Шикардос"; ИЗН на 104-ю; ППГ-90....
Хочу купить: все, что производит Мобиба )))
Откуда: г. Красноярск, Сибирь
Благодарил (а): 585 раз
Поблагодарили: 842 раза
Послужной список

Re: Самодельный теплый пол

Сообщение Николай Николаевич »

ИванРадостев

Пол активно тестите, да рассказывайте какие "+" и "-" выявили в процессе! ;)
По мне так, задумка не плохая у Вас получидлась ;) А доработаете, так и идеально может станет :)
Чтобы не поскользнуться и не упасть, надо все время ходить в тапках. А лучше в летних спортивных шлепках с прочными ремнями.
По моему, аквашузы использовать эффективней ;)
Аватара пользователя
ИванРадостев
Старшина Мобиба Гвардии
Старшина Мобиба Гвардии
Сообщения: 384
Зарегистрирован: 21 мар 2017, 16:16
Мобиба у меня с: 2017
Мой комплект: РБ170+КЦ1; МБ10а+КЦ2+тент;
МБ15+паробомба3; ВП33; МБ552М2; Р34-2 шт+Согра3; Р63-3 шт; Парафон2; ППГ90; Шикардос; спальник-2 шт, ПС2, КС350 (переделал в 500),ПС700, ИЗН103, шапочка и куча сумок, КС400- 4 шт; ПС750-4шт; ПСН400-3 шт
Хочу купить: ТР-240, КАПСула
Откуда: Новокузнецк
Благодарил (а): 51 раз
Поблагодарили: 592 раза
Послужной список

Re: Самодельный теплый пол

Сообщение ИванРадостев »

Andreich
поэтому нет никаких молний и прочего, если после баньки вытащить из 2-4 матов начинку, то чехлы в баньке подсохнут быстро. и можно спать, всё одно у меня простынка флисовая круглый год со мной.
но зато по прошлому году похожий конструктив проверен на камнях в палатке. всё замечательно, ( у меня сшиты с молниями двойные комплекты 300*600 по два штуки в раскладке 600*600 получается. на камнях даже лучше надувного коврика дорогого, который через два года начинаешь клеить чтоб не спускал. фото прошлогодних матов выложу после выходных..
да согласен остаётся вопрос скольжения и проскальзывания материала, думаю эксплуатация подскажет решение.
Аватара пользователя
Нинель
Младший лейтенант Мобиба Гвардии
Младший лейтенант Мобиба Гвардии
Сообщения: 655
Зарегистрирован: 03 фев 2017, 22:08
Для знакомых: Нина
Мобиба у меня с: 2016
Мой комплект: К-6,3 лавочки,Дюна3, Рб-200 , МБ-15, парафон3,тент РБ-200 ,парабомба,Жига-3
Хочу купить: Тент к К-6
Откуда: Москва
Благодарил (а): 1167 раз
Поблагодарили: 897 раз
Послужной список

Re: Самодельный теплый пол

Сообщение Нинель »

Какие размеры у теплого пола для МБ-10 в сложенном виде?
Аватара пользователя
MixMax
Рядовой (новичок) Мобиба Гвардии
Рядовой (новичок) Мобиба Гвардии
Сообщения: 6
Зарегистрирован: 25 дек 2020, 06:27
Мобиба у меня с: 2020
Мой комплект: МБ10
Хочу купить: Кайфандра-5
Откуда: 2828.ru
Поблагодарили: 1 раз
Контактная информация:
Послужной список

Re: Самодельный теплый пол

Сообщение MixMax »

посм. как сделана коробка из гофрокартона, вот так надо делать,
не надо резать листы, их надо мять
а вообще это колхоз, нужно просто пенка а сверху ткань, все эти многослойки - сборник плесени, песка, пыли, заразы, а не баня а клоака какая то
Аватара пользователя
tj™
Генерал-лейтенант Мобиба Гвардии
Генерал-лейтенант Мобиба Гвардии
Сообщения: 1979
Зарегистрирован: 26 янв 2021, 05:17
Для знакомых: Антон
Мобиба у меня с: 2021
Мой комплект: Кайфандра К5/ МБ-15 / ИЗН / КЦ4 / Парабомба3 / Жига2 / Мегасогра / псн400 / ПС700 / Шикардос 1 и 2
Хочу купить: Р34
Откуда: Балаково Саратовская область
Благодарил (а): 1293 раза
Поблагодарили: 3118 раз
Контактная информация:
Послужной список

Re: Самодельный теплый пол

Сообщение tj™ »

Ребята кто делал полы для МБ15 с вырезом под печь ..... по циферкам гляньте похоже у вас или нет ?
Вложения
полы мб15.jpg
Аватара пользователя
Batman
Модератор Форума
Модератор Форума
Сообщения: 2577
Зарегистрирован: 02 ноя 2017, 03:17
Для знакомых: Сергей
Мобиба у меня с: ноябрь 2017
Мой комплект: ПСН-350, Шикардос МГ-1, жилет, шапочки. МБ-10А Акв.1, ИЗН-10, КЦ-3, ППГ-90, ПС-750, ПУ-22/10, Медиана-5, Парофон-3, Согра-3, 2хМБ-15, ТВ-15, ПП-15, ТН-15, ПУ-15, КЦ-4, МегаСогра, Паробомба-3, Дюна-3, РП-32, МБ-18/22 с тентом БТ, Парофон-4
Хочу купить: Сапфира-100
Медиана-8м на замену Медиана-5
Откуда: Междуреченск
Благодарил (а): 7004 раза
Поблагодарили: 4881 раз
Послужной список

Re: Самодельный теплый пол

Сообщение Batman »

Фирменный пол состоит из двух неравнозначных кусков
IMG_20210907_180257.jpg
Ширина отгибаемого сегмента 110 см
IMG_20210907_180338.jpg
Глубина 97 см
IMG_20210907_180409.jpg
Результат
IMG_20210907_180428.jpg
Аватара пользователя
tj™
Генерал-лейтенант Мобиба Гвардии
Генерал-лейтенант Мобиба Гвардии
Сообщения: 1979
Зарегистрирован: 26 янв 2021, 05:17
Для знакомых: Антон
Мобиба у меня с: 2021
Мой комплект: Кайфандра К5/ МБ-15 / ИЗН / КЦ4 / Парабомба3 / Жига2 / Мегасогра / псн400 / ПС700 / Шикардос 1 и 2
Хочу купить: Р34
Откуда: Балаково Саратовская область
Благодарил (а): 1293 раза
Поблагодарили: 3118 раз
Контактная информация:
Послужной список

Re: Самодельный теплый пол

Сообщение tj™ »

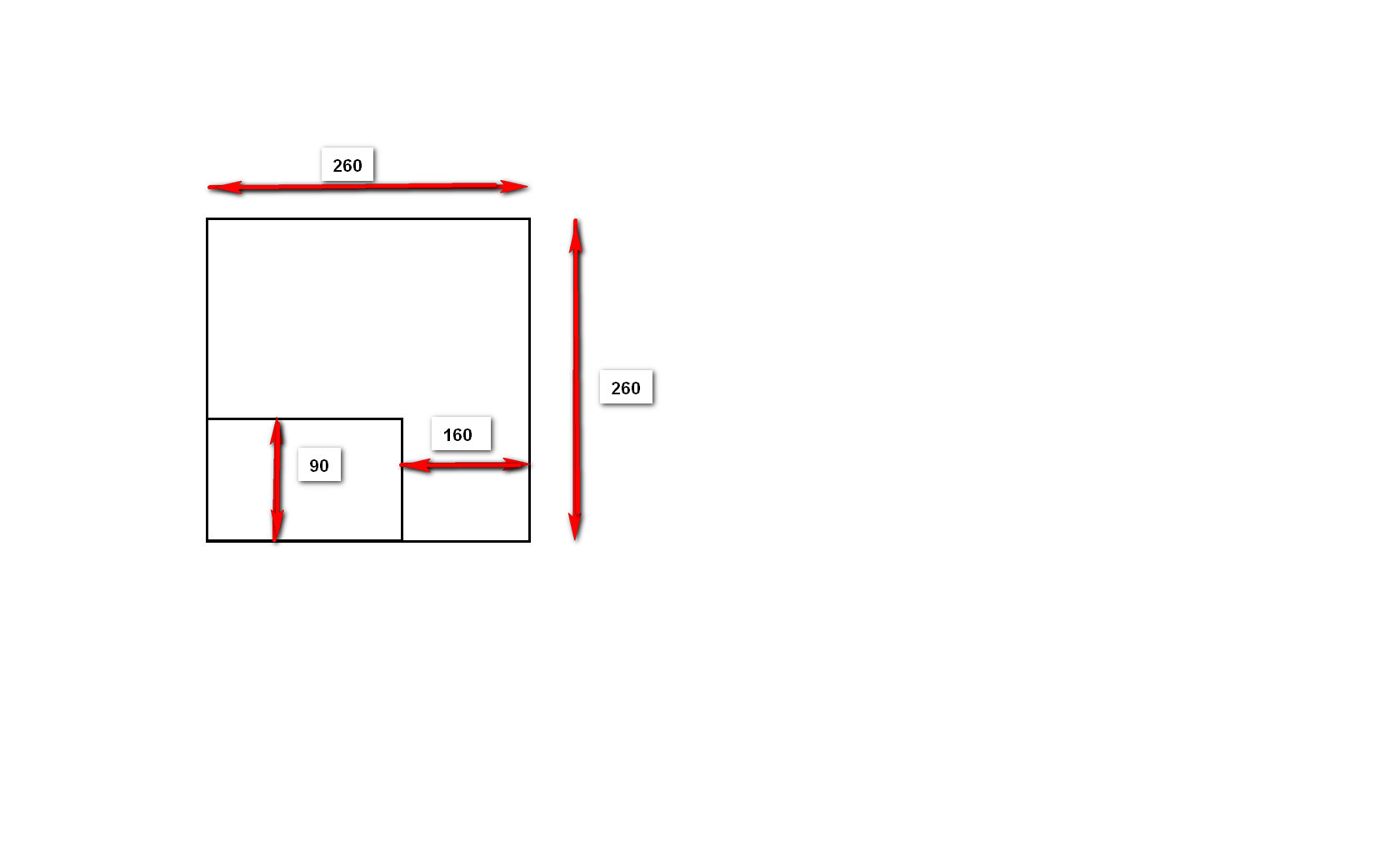
а общий квадрат не помните ? 2550 судя по ТТХ

я правильно цифры расставил ?
Вложения
полыБ.jpg
Аватара пользователя
Batman
Модератор Форума
Модератор Форума
Сообщения: 2577
Зарегистрирован: 02 ноя 2017, 03:17
Для знакомых: Сергей
Мобиба у меня с: ноябрь 2017
Мой комплект: ПСН-350, Шикардос МГ-1, жилет, шапочки. МБ-10А Акв.1, ИЗН-10, КЦ-3, ППГ-90, ПС-750, ПУ-22/10, Медиана-5, Парофон-3, Согра-3, 2хМБ-15, ТВ-15, ПП-15, ТН-15, ПУ-15, КЦ-4, МегаСогра, Паробомба-3, Дюна-3, РП-32, МБ-18/22 с тентом БТ, Парофон-4
Хочу купить: Сапфира-100
Медиана-8м на замену Медиана-5
Откуда: Междуреченск
Благодарил (а): 7004 раза
Поблагодарили: 4881 раз
Послужной список

Re: Самодельный теплый пол

Сообщение Batman »

tj™ писал(а):а общий квадрат не помните ? 2550 судя по ТТХ

я правильно цифры расставил ?
Или 2550 или 2500, не помню))))

Тут вопрос в другом: Фирменный сделан таким образом, чтобы минимизировать раскрой пластин-утеплителей, и чтобы в сложенном виде пол помещался в стандартную сумку для ПУ 50х100 см.

В случае с самодельным полом для творчества гораздо больше возможностей :D

Я бы предложил поступить следующим образом: Поставить МБ-15, в нее ПБ-3 в штатном положении соосно разделке, прикинуть возможный разлет угольков, и исходя из этого уже кроить. Возможно у тебя цифры получатся чуть больше или наоборот, меньше.

Еще один нюанс: штатный ПУ скроен так, чтобы помещаться внутри установленного внутреннего тента, в однослойном варианте его можно сделать и больше чем 255х255.

И если делать НПА вкладыши своего размера, вполне можно скроить так, чтобы он был как ПУ-22/10, из одного цельного куска с разрезом в месте подворота. Сэкономит время, затрачиваемое на состегивание клевантами двух кусков ПУ.

В общем, как раньше на вещевых рынках говорили, есть три размера: "на вас", "не на вас" и "надо мерить" :lol:

Именно третий вариант кажется наиболее разумным.
Есть ли жизнь с Парадигмой в МБ-10?
...Не проверив, не узнаешь...
Аватара пользователя
tj™
Генерал-лейтенант Мобиба Гвардии
Генерал-лейтенант Мобиба Гвардии
Сообщения: 1979
Зарегистрирован: 26 янв 2021, 05:17
Для знакомых: Антон
Мобиба у меня с: 2021
Мой комплект: Кайфандра К5/ МБ-15 / ИЗН / КЦ4 / Парабомба3 / Жига2 / Мегасогра / псн400 / ПС700 / Шикардос 1 и 2
Хочу купить: Р34
Откуда: Балаково Саратовская область
Благодарил (а): 1293 раза
Поблагодарили: 3118 раз
Контактная информация:
Послужной список

Re: Самодельный теплый пол

Сообщение tj™ »

короче будут целые без выреза.

вырезом решаем проблемы с печью - получаем проблемы с раскроем и размерами.

но получается что легче решать вопрос с подставкой под печь чем преодолевать трудности раскроя и компоновки листов.
Аватара пользователя
Batman
Модератор Форума
Модератор Форума
Сообщения: 2577
Зарегистрирован: 02 ноя 2017, 03:17
Для знакомых: Сергей
Мобиба у меня с: ноябрь 2017
Мой комплект: ПСН-350, Шикардос МГ-1, жилет, шапочки. МБ-10А Акв.1, ИЗН-10, КЦ-3, ППГ-90, ПС-750, ПУ-22/10, Медиана-5, Парофон-3, Согра-3, 2хМБ-15, ТВ-15, ПП-15, ТН-15, ПУ-15, КЦ-4, МегаСогра, Паробомба-3, Дюна-3, РП-32, МБ-18/22 с тентом БТ, Парофон-4
Хочу купить: Сапфира-100
Медиана-8м на замену Медиана-5
Откуда: Междуреченск
Благодарил (а): 7004 раза
Поблагодарили: 4881 раз
Послужной список

Re: Самодельный теплый пол

Сообщение Batman »

tj™ писал(а):короче будут целые без выреза.

вырезом решаем проблемы с печью - получаем проблемы с раскроем и размерами.

но получается что легче решать вопрос с подставкой под печь чем преодолевать трудности раскроя и компоновки листов.
Да не получится там никаких особых проблем))))) крои под себя как хочешь. Прорез на загиб лучше сделай, на метр примерно, и пару клевантов. По углам обязательно люверсы либо петли крепления, иначе елозить будет под ногами. Я на свой ПУ 22/10 сам петли нашивал. А по расположанию вкладышей по месту определишься. Можно сначала сделать ПУ единым кроем, а потом прорезать и обработать лентой края.
Есть ли жизнь с Парадигмой в МБ-10?
...Не проверив, не узнаешь...
Аватара пользователя
tj™
Генерал-лейтенант Мобиба Гвардии
Генерал-лейтенант Мобиба Гвардии
Сообщения: 1979
Зарегистрирован: 26 янв 2021, 05:17
Для знакомых: Антон
Мобиба у меня с: 2021
Мой комплект: Кайфандра К5/ МБ-15 / ИЗН / КЦ4 / Парабомба3 / Жига2 / Мегасогра / псн400 / ПС700 / Шикардос 1 и 2
Хочу купить: Р34
Откуда: Балаково Саратовская область
Благодарил (а): 1293 раза
Поблагодарили: 3118 раз
Контактная информация:
Послужной список

Re: Самодельный теплый пол

Сообщение tj™ »

да я заказываю. а там значит либо 1.30 либо никак. т.е угол больше вырезают чем мне надо. буду ставить на огнеупорный мат печь ..... и стелить полотно негорящее для углей. Теплее и уютнее опять же .... мне то пофигу я и на снегу бы сидел на стуле. Опять все для других ......
Аватара пользователя
Batman
Модератор Форума
Модератор Форума
Сообщения: 2577
Зарегистрирован: 02 ноя 2017, 03:17
Для знакомых: Сергей
Мобиба у меня с: ноябрь 2017
Мой комплект: ПСН-350, Шикардос МГ-1, жилет, шапочки. МБ-10А Акв.1, ИЗН-10, КЦ-3, ППГ-90, ПС-750, ПУ-22/10, Медиана-5, Парофон-3, Согра-3, 2хМБ-15, ТВ-15, ПП-15, ТН-15, ПУ-15, КЦ-4, МегаСогра, Паробомба-3, Дюна-3, РП-32, МБ-18/22 с тентом БТ, Парофон-4
Хочу купить: Сапфира-100
Медиана-8м на замену Медиана-5
Откуда: Междуреченск
Благодарил (а): 7004 раза
Поблагодарили: 4881 раз
Послужной список

Re: Самодельный теплый пол

Сообщение Batman »

tj™ писал(а):мне то пофигу я и на снегу бы сидел на стуле. Опять все для других ......
Я ставил КЦ-4 на ПУ, под корону запихал кусок ДВП.

Так по неведомой причине вкладыш сплющился точно по диаметру короны несмотря на подкладку.

А вообще, как там в бессмертном мультике...



:lol:
Аватара пользователя
tj™
Генерал-лейтенант Мобиба Гвардии
Генерал-лейтенант Мобиба Гвардии
Сообщения: 1979
Зарегистрирован: 26 янв 2021, 05:17
Для знакомых: Антон
Мобиба у меня с: 2021
Мой комплект: Кайфандра К5/ МБ-15 / ИЗН / КЦ4 / Парабомба3 / Жига2 / Мегасогра / псн400 / ПС700 / Шикардос 1 и 2
Хочу купить: Р34
Откуда: Балаково Саратовская область
Благодарил (а): 1293 раза
Поблагодарили: 3118 раз
Контактная информация:
Послужной список

Re: Самодельный теплый пол

Сообщение tj™ »

Тоже верно. Работаю чтобы жить, а не живу чтобы работать. Бегать вокруг каждого скола на авто и охать и ахать, ну тогда пусть стоит в гараже - сколов не будет.

Это как у меня товарищь Ниву купил и начал ее "наряжать" покрасил - как новая аж горит. Я говорю нахера ты это делаешь ? как ты будешь в лес ездить ? как лодку теперь таскать в воду заезжать буксовать камни грязь ? А я говорит не буду в лес ездить ...... тогда говорю зачем тебе нива ?????
Аватара пользователя
tj™
Генерал-лейтенант Мобиба Гвардии
Генерал-лейтенант Мобиба Гвардии
Сообщения: 1979
Зарегистрирован: 26 янв 2021, 05:17
Для знакомых: Антон
Мобиба у меня с: 2021
Мой комплект: Кайфандра К5/ МБ-15 / ИЗН / КЦ4 / Парабомба3 / Жига2 / Мегасогра / псн400 / ПС700 / Шикардос 1 и 2
Хочу купить: Р34
Откуда: Балаково Саратовская область
Благодарил (а): 1293 раза
Поблагодарили: 3118 раз
Контактная информация:
Послужной список

Re: Самодельный теплый пол

Сообщение tj™ »

Ребята чуть подробнее за полы спрашивали ...... вот немножко обозрел .....

Аватара пользователя
ДоВольные
Сержант Мобиба Гвардии
Сержант Мобиба Гвардии
Сообщения: 107
Зарегистрирован: 23 дек 2019, 10:30
Для знакомых: Владимир и Татьяна
Мобиба у меня с: ноябрь 2019
Мой комплект: МБ-15, ПУ-15, ИЗН-15, Медиана-5, БН-12, 2-е шапочки, Паробомба-3, Согра-3, ТВ-15, ПП-15, жилет "Профи", Кайфандра-5
Хочу купить: ТН-15
Откуда: Нововоронеж
Благодарил (а): 383 раза
Поблагодарили: 404 раза
Послужной список

Re: Самодельный теплый пол

Сообщение ДоВольные »

tj™ писал(а):Ребята чуть подробнее за полы спрашивали ...... вот немножко обозрел .....

Антон, здравствуй. Теплый пол конечно полный улёт! Подскажи ещё про наполнитель – вроде и раньше ты писал про изолон ижевский и в видео тоже прозвучал «изолон», а это не пенофол ли? На тёплый пол для «Кайфандры» тоже рассматривал изолон (это из чего сделаны туристические коврики), чтобы был в комплекте, а вдруг и её буду использовать зимой, но заказать в небольшом количестве из Ижевска так и не смог. В итоге сделал тоже из фольгированного пенофола, толщиной 1 см. По каким соображениям у тебя выпал выбор?
Ответить

Вернуться в «Дополнительные опции для мобильных бань Мобиба»